
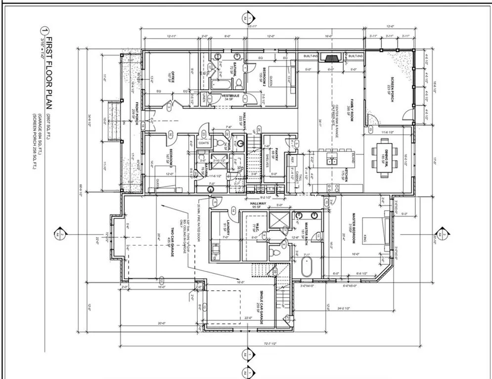
This 0.3-acre lot is ideally located in the heart of Brookhaven, within walking distance of Brookhaven City Hall and the Brookhaven Metro Station. Currently, the property features a 2007 custom-built craftsman home, presenting a fantastic opportunity for modernization. The seller suggests a partial rebuild of the first level to create a modern open floor plan while preserving the charm of the existing second and third levels. The proposed first-level redesign encompasses 3,366 square feet, including a three-car garage, a deck with a fireplace, and thoughtfully planned living spaces. Renderings of the proposed layout are included for your reference. The existing second and third levels contribute approximately 2,700 square feet, bringing the total living space to over 6,000 square feet. This flexible renovation approach allows you to achieve a contemporary home at a fraction of the cost of building new construction of similar size. The expansive, flat backyard provides the perfect canvas for a pool, garden, or outdoor entertainment area, making this property even more desirable. While the updates require additional investment, the return on investment (ROI) is well-supported by the increased functionality, aesthetics, and value the upgrades deliver. For more details about the current home, please see listing #7502568. If you'd like to work with our builder—the same team behind the home in the pictures—we’d be happy to provide a quote for the proposed first-level modernization. However, you’re under no obligation to use our builder and are welcome to work with your own.
Listings identified with the FMLS IDX logo come from FMLS and are held by brokerage firms other than the owner of this website. The listing brokerage is identified in any listing details. Information is deemed reliable but is not guaranteed. If you believe any FMLS listing contains material that infringes your copyrighted work please click here to review our DMCA policy and learn how to submit a takedown request. © 2022 First Multiple Listing Service, Inc.
Last Updated: . Source: FMLS
Provided By
Listing Agent: IGOR ARKHIPOV (#ARKIGOR)
Listing Office: Realco Brokers, Inc. (#REBR01)

Get an estimate on monthly payments on this property.
Note: The results shown are estimates only and do not include all factors. Speak with a licensed agent or loan provider for exact details. This tool is sourced from CloseHack.